MASTER PLAN
SITE PLAN
EXPLODED AXON
DESIGN SECTION
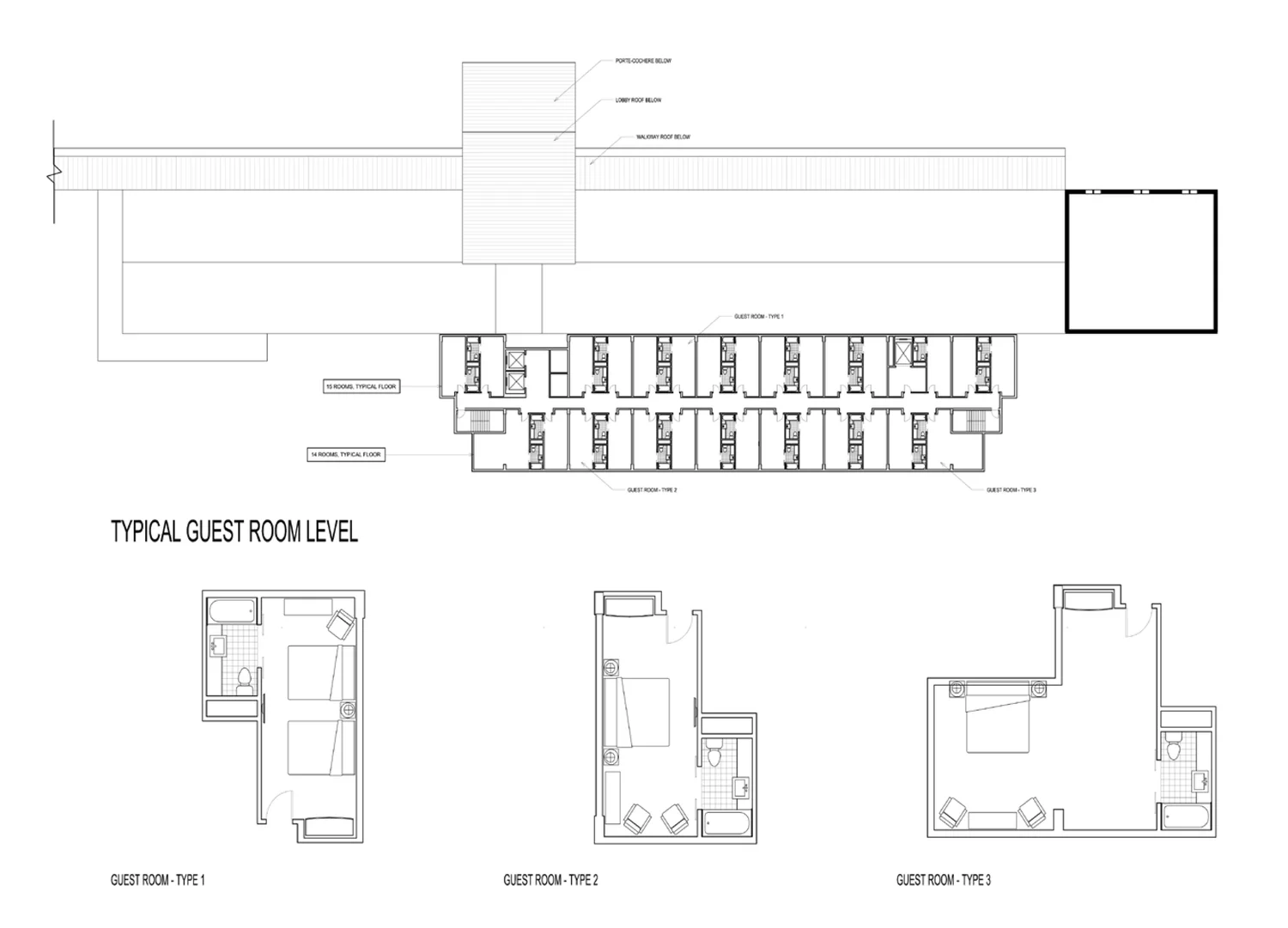
TYPICAL GUESTROOM FLOOR PLAN
TYPICAL GUESTROOM LAYOUTS
OVERALL BUILDING IMAGES
RENDERING
prev / next